ARTÍCULO
Cuartel Terranova, análisis de la configuración espacial en relación a las estrategias de represión y control de detenidos y torturados.
Nicole Fuenzalida Bahamondes*
*Universidad de Chile, Facultad de Ciencias Sociales, Departamento de Antropología. Nicole Fuenzalida es egresada de la Carrera de Antropología, mención Arqueología de la Facultad de Ciencias Sociales de la Universidad de Chile. Este trabajo sintetiza el informe de práctica profesional desarrollado en el año 2008. Actualmente es becaria de FONDECYT, para el proyecto “Las Poblaciones Locales y el Tawantinsuyo en la cuenca del rio Aconcagua: Transformaciones Socioculturales e Ideológicas durante el Periodo Tardío” en donde realiza actualmente su tesis de licenciatura sobre la producción cerámica en época Incaica para el valle de Quillota (V región de Valparaíso); y participa del proyecto “Intercambio, Movilidad y Consumo Conspicuo Funerario Durante el Formativo Medio (500 Ac-100 Dc), Rio Loa Medio e Inferior (Desierto De Atacama)” donde investiga los circuitos de intercambio y consumo en sociedades formativas del interior de la II región de Antofagasta. E-mail: nmn_fb@hotmail.com
Recibido: Marzo de 2011
Aceptado: Junio de 2011
RESUMEN
A partir del análisis de la configuración espacial y arquitectónica del Cuartel Terranova se busca identificar la manera en que el espacio funcionó como herramienta de control político en la Dictadura Militar (1973-1990). Bajo los lineamientos de la Arqueología de la Arquitectura y Estudios Proxémicos se investiga la importancia que tiene la cultura material en el condicionamiento de las prácticas sociales, en particular en sistemas totalitarios. Se demuestra la validez social de la perspectiva arqueológica en su actuación como instrumento metodológico, útil en la recuperación de restos materiales en estos contextos políticos, logrando la recuperación del pasado reprimido y olvidado. Por otro lado, el proceso de la investigación contribuye al desarrollo político-científico de la disciplina, debido a que al igual que en otros aspectos de la sociedad, la Dictadura produce enámbitos de producción de conocimiento un estancamiento y represión que se evidencian incluso hoy en día. En definitiva, se plantea la intención de constituir una práctica reflexiva y políticamente comprometida, a partir de los lineamientos de la Arqueología de la Represión.
Palabras clave: Arqueología de la Represión; Arqueología de la Arquitectura; Dictadura; Control Político; Análisis Espacial.
ABSTRACT
Considering the spatial and architectural configuration of Cuartel Terranova, it wants to demonstrate how the space configuration has been a tool of the political control in the Military Dictatorship (1973-1990).Theoretically, the study follows the concepts of the Archaeology of Architecture and Proxemic Studies which highlight the importance of material culture in social practices, particularly in totalitarian systems. It is shown the social validity of this archaeological perspective as a methodology useful to recovering material remains in certain political contexts. In this sense, archaeology is able to recovering a repressed and forgotten past. Moreover, this research contributes to the political-scientific development of archaeological studies, because the dictatorships have also retarded and repressed the discipline. Hence, it is intended to contribute towards a reflexive practice and politically engaged, following the guidelines of the Archaeology of Repression.
Keywords: Archaeology of Repression; Archaeology of Architecture; Dictatorship; Political Control; Spatial Analysis
INTRODUCCIÓN
Para la comunidad en general la arqueología representa una actividad intelectual exótica, ligada a las imágenes de Indiana Jones o a los buscadores de tesoros en lugares recónditos. Estas ideas poseen un asidero verídico en tanto que por mucho tiempo la arqueología se ha centrado en el estudio de sociedades prehistóricas, configurándose como una ciencia aséptica y bastante distante de las contingencias ideológicas actuales. En los últimos tiempos esto ha ido cambiando como resultado de movimientos sociales y cambios epistemológicos que han permitido la interacción de los investigadores con grupos y comunidades locales.
Este es el caso de la Arqueología Social que adquirió en Latinoamérica un perfil particular, en el que distintos puntos de vista acordaron que el conocimiento en sí es transformador (Bate 1974, 1998; Lumbreras 1974; Montané 1980; Gándara 1992; Vargas y Sanoja 1995). Esta asunción conllevó, necesariamente, un compromiso político y económico ineludible (Vargas y Sanoja 1995; Benavides 2001). Sin embargo, sus expresiones no salieron del ámbito académico. Hoy en día la situación no parece cambiar demasiado. Las discusiones, estudios, trabajos e investigaciones permanecen en el claustro institucional, quedando abierta la necesidad de vincular la práctica arqueológica a las necesidades del público general. Evidentemente, hay excepciones que en general se vinculan a las temáticas de desarrollo del patrimonio y a la participación indígena, rural y ciudadana. Esta investigación representa la intención primaria de encontrar legitimidad a la práctica arqueológica como actividad científica dirigida a la utilidad social de sus producciones en el presente. Esta perspectiva implica una actitud crítica ante el status quo ya que supone una concepción de la propia disciplina como Ciencia Social que puede y debe abrir espacios para una concientización nueva sobre la historia reciente y política contemporánea.
A partir de esto, una de las principales motivaciones que posee esta investigación es la de abrir un espacio de discusión en torno al tema de la represión política y al terrorismo de Estado acontecido en Chile bajo la Dictadura Militar (1973-1990). Como en otros países del Cono Sur Sudamericano, la represión de las décadas del ‘70 y ’80 se ejercía por medio de aparatos disciplinarios sumamente especializados que desarrollaban una serie de estrategias y tecnologías tendientes a la persecución, detención, tortura y aniquilación de los movimientos populares. Una de las expresiones más reveladoras de estas formas de represión la constituyeron los centros clandestinos de detención y tortura, donde la arquitectura y la organización espacial jugaron un rol esencial en la garantía del funcionamiento punitivo (Zarankin y Niro 2006; Di Vruno et al. 2008; Sepúlveda et al. 2010). La arqueología situada en la contemporaneidad puede/debe estudiar la materialidad asociada a la represión política: restos óseos, artefactos producidos en las cárceles, lugares donde se ejercía la opresión, entre otros. En estos contextos, la arqueología puede ofrecer un discurso que visibiliza las identidades negadas en la historia oficial.
Nuestra investigación pretende reflexionar sobre la relación existente entre la cultura material y las estrategias de represión y control totalitarias. No obstante, se debe realizar una advertencia: el lector se encontrará con un trabajo que enfatiza el proceso técnico de la práctica arqueológica en la recuperación de los restos del pasado (Fuenzalida 2008). Hacemos la invitación a pensar desde la arqueología cómo se organizaba el espacio y la arquitectura sobre este sitio, uno de los centros represivos más relevantes en la historia contemporánea de Chile.
NUESTRO OBJETO DE ESTUDIO
La Villa Grimaldi fue -antes del Golpe de Estado de 1973- un hermoso lugar ubicado a los pies de los primeros faldeos de la cordillera de los Andes. Allí se construyó alrededor de 1840 una amplia casa de estilo colonial que pasó, a través de los años, a distintas familias acomodadas de la época. A mediados de 1974 el recinto que ocupaba la Villa Grimaldi fue reemplazado por el Cuartel Terranova, dependiente de la Dirección de Inteligencia Nacional.
El Cuartel Terranova (Figura 1) se encontraba ubicado de forma aislada (considerando la época) en una zona precordillerana del sector sur oriente de Santiago, ocupando un área de aproximadamente 11700 m2. Vale destacar que en aquel momento existían a su alrededor hectáreas de pastos y tierras de cultivo. A unos 800 m se encontraba el Aeródromo Tobalaba, ubicado hacia el noroeste del sitio y desde donde solían operar gran parte de los helicópteros del ejército (Corporación Parque por la Paz 2004)1. A una milla de camino hacia arriba se encontraba el Regimiento de Telecomunicaciones, desde donde Pinochet dirigió las operaciones el día del Golpe Militar (Corporación Parque por la Paz 2004). De esta manera, la posición del Cuartel Terranova era estratégica.

Figura 1. Fotografía de la propiedad en los años ’60.
Desde sus inicios participó como centro selectivo de detención, tortura y desaparición de personas. En forma similar funcionaron muchos otros centros clandestinos, aunque después del Estadio Nacional, Villa Grimaldi fue el lugar de mayor actividad. Se calcula que cerca de 4500 personas fueron detenidas y torturadas; y la información disponible arroja un listado de 226 asesinados y desaparecidos (Corporación Parque por la Paz 1997).
Los centros de detención funcionaban bajo una división de tareas represivas asignadas en grupos. El dispositivo consistía en despojar a los detenidos de su condición de persona y arrancarles la identidad de forma que se garantice su total destrucción:
“Mi cuerpo está anestesiado por los golpes, pero mi cerebro trabaja como la luz… tan sólo 24 horas, debo aguantar, sólo 24 horas… a tirones me arrancan la ropa, siento el frío del metal en mi cuerpo desnudo, son huinchas metálicas, es una cama… el seco del golpe de la corriente eléctrica me informa que estoy en la parrilla… pierdo el control de mi cuerpo, alguien me insulta, mientras lleva hasta mi boca mis propios desechos fecales… sólo 24 horas, pero ellos también lo saben, de pronto, todo termina, por largos segundos el torturador también se cansa, pero vuelve con más fuerza, la corriente me seca la boca y el alma…” (Corporación Parque por la Paz 1997:15).
Esta organización distribuía grupos en distintas áreas, segregando al mismo tiempo los lugares de tortura y detención (Corporación Parque por la Paz 1997).
En la década del ’80 la Central Nacional de Informaciones (CNI), organismo sucesor de la Dirección de Inteligencia Nacional, compró la propiedad al Servicio de Vivienda y Urbanismo. En 1987 el último director de la CNI, Hugo Salas Wenzel, vendió el lugar a la Sociedad Constructora E.G.P.T. Ltda, empresa que demolió el recinto, dejando algunas estructuras (Corporación Parque por la Paz 1997). Más tarde, el Consejo de Defensa del Estado acudió a Tribunales para investigar las irregularidades de la venta de Villa Grimaldi, expropiando la propiedad y frenando las intenciones de la constructora. En 1996 se constituyó formalmente la Corporación Parque por la Paz Villa Grimaldi que impulsó junto al Ministerio de Vivienda y Urbanismo la construcción de un parque en tanto memorial, lugar definido desde significaciones de carácter intimista y emocional.
Nuestra intención es pensar a Villa Grimaldi como centro clandestino de represión, Cuartel Terranova. De este modo, se sostiene la idea de entender al sitio como lo enfatiza Zarankin y Niro (2006) en tanto no-lugar, es decir, un dispositivo represivo propio de la Dictadura, un espacio que maximiza los efectos de las instituciones punitivas hasta llevar al exterminio y cuya función ya no es detener y corregir, sino destruir y eliminar.
El CUARTEL TERRANOVA DESDE LA PERSPECTIVA ARQUEOLÓGICA
Ahora, ¿por qué llevar a cabo en el Cuartel Terranova un estudio arqueológico? Pensamos que la respuesta tiene al menos dos argumentos. Primero, porque la arqueología como sistemática de la materialidad posee un enorme potencial metodológico en estos contextos políticos, siendo un instrumento útil en la recuperación de restos materiales. En este sentido, la disciplina da la posibilidad de escribir una historia alternativa al discurso oficial a través del estudio de formas no discursivas sobre la cultura material. De esta manera se logra la recuperación del pasado reprimido y olvidado, con una lectura más allá de la documentación escasa y fragmentaria del registro histórico. En segundo lugar, al estudiar Villa Grimaldi desde la arqueología se contribuye al desarrollo político-científico de la propia disciplina. Esto debido a que al igual que en otros aspectos de la sociedad, la Dictadura produce un gran entorpecimiento y quiebre en el pensamiento arqueológico y de las ciencias sociales en general.
El Golpe Militar se inserta en plena etapa de institucionalización universitaria, cuando la arqueología chilena se establecía sobre una base de discusión científica y labor académica creciente. Como en todas las ciencias sociales, tras el Golpe se truncó este desarrollo: las universidades sufrieron una completa intervención militar -con el sistema de rectores delegados- y entre otras situaciones se cerraron las licenciaturas, se persiguió a estudiantes y profesores. Este hecho, sin duda, impactó profundamente en el pensamiento filosófico, histórico, humanístico y social de Chile. En efecto, estudiantes e investigadores en los años siguientes se orientaron a salvar la institucionalidad y proteger la permanencia de los arqueólogos en sus puestos de trabajo, cesaron las reuniones científicas y el trabajo se vuelvió individual y de laboratorio.
En términos teóricos se erradicó la politización del pensamiento (se oprimen los enfoques marxistas), se alimentaron las corrientes antihistóricas, consolidando la disciplina como Antropología bajo los lineamientos del procesualismo, perspectiva ligada al modelo político y económico imperante (Troncoso et al. 2008). Con el advenimiento de la democracia, se revitalizó la docencia e investigación, se reanudó el diálogo, abriéndose a nuevas perspectivas simbólicas y estructurales (Orellana 1996). No obstante, al igual que en otros aspectos de la sociedad, la Dictadura produjo en la disciplina un estancamiento y represión que se evidencian incluso hoy. Los enfoques que predominaron en los trabajos de investigación en Chile, por muchos años han promovido un discurso científico, objetivo, a-valorativo y a-político, que fue legalizado por los criterios evaluativos generales establecidos para las ciencias y los fondos de investigación estatales. Por ejemplo, FONDECYT, institución estatal que financió la mayor parte de los trabajos arqueológicos en Chile, se asignó recursos a proyectos de investigación que excluían temas relativos a la valoración y conservación del patrimonio, como a aquellos que poseían cualquier implicancia social (Troncoso et al. 2008). Al igual que en otros países sudamericanos, por años se ha estipulado que la metodología importada era el mejor camino hacia el conocimiento, y una praxis marginada de la participación local (Uribe y Adán 2003). De esta manera, la arqueología chilena actual, heredera de la represión del gobierno militar, se halla en general desvinculada de la sociedad, así como de su contexto político e histórico.
Como nos sentimos parte de este marco disciplinario, es nuestro deber discutir sobre la necesidad de replantear la arqueología chilena, contextualizarla al servicio del presente, y vincularla a la praxis política. Se plantea entonces la intención de constituir una práctica reflexiva y políticamente comprometida, subrayando la necesidad de desarrollar en nuestro país una Arqueología de la Represión surgida de la necesidad de entender el papel autoritario ejercido por la Dictadura sobre la disciplina: “No se puede estudiar bien la represión, sin un examen de las condiciones que en nuestro país llevaron a la arqueología a abstenerse del tema por tanto tiempo y de manera tan persistente” (Funari y Vieira de Oliveira 2006:127). La Arqueología de la Represión es un proyecto de arqueología regional que convoca a distintos países latinoamericanos unidos por la historia común de la represión militar acontecida entre los años 1960 y 1980 (Funari y Zarankin 2006). A nuestro juicio, la importancia que posee este proyecto es justamente desarrollarse como una perspectiva arqueológica propiamente latinoamericana, una disciplina que promueve el diálogo regional, esbozando sus lineamientos de forma autónoma -a los grandes centros metropolitanos- y respondiendo a las características contextuales e históricas específicas de este continente.
METODOLOGÍA
Tanto la reconstrucción del proceso histórico como del lugar físico han sido elaborados a partir de distintas fuentes: documentación bibliográfica, documentación testimonial, fotografías, entrevistas, notas y dibujos . Debemos subrayar que l a documentación de la propiedad, los planos de la misma e información sobre el proceso general no han podido ser encontrados. De modo que al igual que las investigaciones hechas en otros centros de detención y tortura se utilizará el testimonio como primera fuente.
Al respecto, trabajos arqueológicos han demostrado la eficacia de la memoria corporal de los detenidos y sobrevivientes, revelando una alta concordancia entre el relato, la concretización en dibujos y planos y el espacio excavado (Zarankin y Niro 2006; Di Vruno et al. 2008). Así, para realizar la lectura de la configuración espacial y arquitectónica del lugar se realizó un estudio de planta del plano producido por los propios detenidos, a partir de los planteamientos generados por la arquitectura y la arqueología. Luego se complementaron estos aportes con la información relevada en terreno, centrándonos en las estructuras que permanecen en el sitio2.
La metodología de la Arqueología de la Arquitectura consiste en definir o descomponer las dimensiones constitutivas de la entidad a estudiar y describir los fenómenos considerados sin introducir un sentido extraño a ellos (Mañana et al. 2002). Dentro de esta metodología se presenta el análisis formal, que consiste en definir las dimensiones constitutivas de cualquier entidad formal. Sus resultados revelan la forma básica que trata sobre las líneas maestras de su configuración formal, liberada de atributos secundarios Así también se concretan las características distintivas de las entidades a través de la forma específica (Criado 1999). Por otra parte, también se analizarán los tamaños de las estructuras estableciendo variables de: longitud, anchura, área, altura y volumen, para dar cuenta de las dimensiones espaciales y corporales implicadas.
Los análisis del movimiento y percepción visual comprenden el análisis de circulación y análisis Gamma. Los primeros valoran la circulación y movimiento del individuo en una construcción, de acuerdo al tipo de aproximación a la estructura, modo de acceso y configuración del recorrido (Ching 2000). El segundo refiere al análisis Gamma de Hillier y Hanson (1984) que consiste en la descomposición de la organización espacial expresada en gráficos y diagramas. Este análisis ha sido complementado por Blanton (1994), quien toma como base aquel modelo y genera cuatro índices (Zarankin 1999a). El índice de escala permite evidenciar la gran diferencia existente entre estructuras, unas que son bastante simples a otras cuyo tamaño y número de habitaciones es mucho mayor. En cuanto al índice de integración, este permite dar cuenta de las estructuras que presentan el número mínimo posible, ya que cada cuarto tiene al menos una conexión. El índice de complejidad A revela las diferencias en cuanto a número de conexiones existentes y la variación funcional que tienen los espacios. En tanto el índice de accesibilidad revela los grados de control y acceso respecto al exterior. La variable que guía este análisis es el concepto de restricción y control, que supone que un aumento del control se materializa en mayores restricciones espaciales (Zarankin 1999a, 1999b).
Para los estudios de la percepción visual se realizaron análisis de visibilidad que consideran la percepción del espacio en movimiento, observando espacios privados y públicos según el grado de exposición que sufren en relación al recorrido y rutas de tránsito que se hacen a través de ellos (Mañana et al. 2002). Lo anterior es integrado a una reflexión proxémica tal como la caracteriza Hall (1998 [1966]) quien establece la importancia que tienen las distancias interpersonales en la percepción espacial.
Por otro lado, el nivel básico de análisis se ha planteado a partir del concepto de estructura, por esto, entendemos como elementos arquitectónico-arqueológicos a poyos, hornacinas, acumulaciones de piedra, círculos de piedra o edificaciones de cualquier material constructivo que albergue un recinto.
RESULTADOS
Análisis Formal
El sitio de Villa Grimaldi posee cinco estructuras que se sintetizan en la Tabla 1 y Figura 2.
Tabla 1. Categorías de análisis: estructuras, uso original y función durante el Cuartel Terranova.


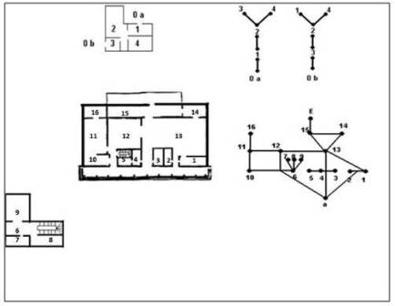
Figura 2. Plano de las estructuras consideradas en el análisis
Análisis de cada componente arquitectónico
De manera general en las estructuras existe un predominio de formas cuadradas (ver Figura 3). Esta forma geométrica representa lo puro y racional, es una figura estática y neutra que carece de dirección concreta (Ching 2000). Asimismo, distinguimos la regularidad formal que prevalece, en términos de simetría y estabilidad. Por otra parte, dos estructuras del lugar (3 y 4) poseen una forma lineal, que prioriza la longitud de la estructura y tiende hacia el exterior, conformándose como espacio contenedor (Ching 2000).

Figura 3. Croquis formal y perfil básico de las
estructuras estudiadas.
En términos de campo espacial total, podemos decir que existe un espacio centraldominante (E2) en torno al que se agrupan las restantes estructuras. Así, también las características de aproximación y entrada quedan supeditadas a las condiciones de emplazamiento de esta entidad central. La dominancia de esta estructura se define tanto por la centralidad de su situación como por la importancia visual que adquiere en la elevación del plano que posee al existir escaleras y columnas. Sin embargo, existe una irregularidad generada por la disposición diferenciada -lineal- (de las E3 y E4) que otorga mayor dinamismo y un quiebre en las relaciones espaciales.
Análisis del Movimiento
Análisis de circulación a nivel de estructura
La visión a distancia o la aproximación al edificio se advierte, en primer lugar, por la existencia de caminos y senderos que condicionan el sentido y dirección de la circulación, como también por la perspectiva visual que privilegia ciertos espacios (Figura 4). Los espacios destacados en el esquema general de circulación se encuentran: a) directamente relacionados a los accesos principales del lugar (E2);ó b) vinculados a la dirección y movimiento al situarse al final del recorrido (E4). Predomina la aproximación frontal, esto es, que en cada estructura se conduce directamente a la entrada a lo largo de un recorrido directo. En cuanto al acceso de la mayoría de las estructuras hacia el espacio interior, privilegia un sentido indirecto, interrumpido por los cambios de nivel del suelo debido a la presencia de escalinatas o columnas que obstaculizan la entrada (ver Figura 1).

Figura 4. Circulación y acceso a cada estructura.
Análisis de circulación a nivel de sitio
Existe una configuración del recorrido para todo el sitio que sigue un sentido esencialmente lineal y secundariamente radial, es decir, hay una organización espacial que condiciona el movimiento desde un centro (E2) hacia las demás construcciones (Figura 5).

Figura 5. Diagrama del sentido y dirección del recorrido.
Análisis Gamma de Hillier y Hanson y aplicación de índices de Blanton
A continuación se establecen los diagramas a partir de la cuantificación de los nodos y conexiones de cada una de las estructuras (Figuras 6, 7, 8, 9).

Figura 6. Esquema
superior derecha :
nodos y conexiones
de la E1; superior
izquierda: diagrama del
recorrido E1; esquema
inferior derecha: nodos
y conexiones de la E2;
inferior izquierda:
diagrama del recorrido
de la E2.

Figura 7. Nodos
y conexiones,
diagrama del
recorrido de la E3.

Figura 8. Nodos y conexiones, diagrama del
recorrido de la E4.

Figura 9. Nodos y
conexiones, diagrama del
recorrido de la Estructura 5.
La presente tabla (Tabla 2) sintetiza los resultados del análisis en las estructuras, en cuanto a cantidad de nodos, conexiones y aplicación de los índices de Blanton (1994).
Tabla 2. Resultados análisis Gamma e índices de
Blanton (1994).

Como vemos, la E3 presenta el mayor grado de compartimentación del espacio expresado en el mayor índice de escala, seguida por la E2 cuyo índice de escala da cuenta del tamaño y envergadura de la construcción. En cuanto al índice de integración, este permite dar cuenta que las estructuras presentan el número mínimo posible, ya que cada cuarto tiene al menos una conexión. Sin embargo, la estructura que se escapa es la 4, en la que el índice de integración revela el mayor grado de restricción y aislamiento de las habitaciones. El índice de complejidad A va desde estructuras que tienen un grado muy bajo (5-8) a aquellas que presentan una gran cantidad de conexiones entre nodos (21-34). Claramente, la E3 destaca en cuanto al mayor índice de complejidad de todas las estructuras, describiendo una alta variación funcional en el uso del espacio. En tanto el índice de accesibilidad vemos que de nuevo destacan las E3 y E4 que muestran un alto grado, dando cuenta de la restricción y control que opera en estas para alcanzar el exterior.
Análisis de la Percepción Visual
Configuración de la percepción visual
Desde el acceso del exterior hacia el Cuartel Terranova era posible apreciar las E1 y 2. De esta manera, cobraban relevancia tanto por su relación directa con el recorrido, como por su mayor grado de exposición. Estas estructuras parecen estar controlando el acceso al lugar. La E3 presenta un grado de exposición menor y dominancia visual baja, aunque establece una relación directa entre la unidad de tortura y la casona (unidad administrativa-logística). Al interior de la E3 la situación es clara. Su exposición respecto al exterior es prácticamente nula debido a la obstrucción de la visibilidad por distintos factores: la existencia de un muro, un árbol y la apertura. La E4 posee un grado de exposición bajo, aunque igualmente relevante ya que se encuentra al final del recorrido. Asimismo tiene un dominio visual amplio que permite desde su piso superior observar una panorámica y controlar el lugar. En la E5 la exposición es baja, así como su relación al recorrido es restringida debido a la disposición formal de sus accesos, condicionando un dominio visual muy limitado.
Análisis de tamaños
Se realizó este análisis para tres unidades o celdas de dos estructuras (E4 y 3) (ver Tabla 3)3.
Tabla 3. Dimensiones de las celdas

Las dimensiones de estas unidades son bastantes pequeñas. Las proporciones no nos hacen sino evidenciar la baja correspondencia existente en relación a la escala humana. Concretamente, tales dimensiones formales y espaciales impiden el desarrollo de cualquier actividad humana. De esta forma, cuando se colocaba a cinco personas en estas superficies de 1 m2, se les privaba de sus condiciones básicas de subsistencia (Figura 10). Hall (1998:72 [1966]) expresa: “…lo que uno puede hacer en un espacio dado determina su forma de sentirlo”. Claramente, en las condiciones extremas como las celdas que estudiamos, la organización represiva del espacio, no sólo corporal sino también auditiva, olfativa, etc. han impedido mantener las distancias personales mínimas establecidas por la proxémica (Figura 11).

Figura 10. Casas Chile. Celdas herméticas de 1x1 m.
Dibujo realizado por Miguel Montecinos.

Figura 11. Detenido desangrándose. Dibujo realizado
por Miguel Montecinos.
DISCUSIÓN
Como se pudo apreciar, la investigación parte de la comprensión de la Arquitectura como elemento sustancial de la cultura material que sirve como medio eficaz para controlar o disciplinar al individuo (Foucault 1976). En efecto, nuestros objetivos apuntaron a discutir cómo la configuración espacial y la arquitectura de Villa Grimaldi se articuló a las estrategias de represión y control político de torturados/detenidos. En tal sentido encontramos diversos resultados que en general plantean que la cultura material efectivamente funcionó como una estrategia más de represión y control de los detenidos/ torturados que pasaron por el Cuartel Terranova o, en términos de Foucault, que la configuración arquitectónica-espacial del sistema panóptico estuvo al servicio de un mayor control de los detenidos/torturados.
Así, se pudo observar que si bien en la forma básica se prioriza un patrón racional y lógico, en la definición de la forma específica esta regularidad se pierde, potenciando el dinamismo y la discontinuidad de las unidades. De este modo en la configuración formal del lugar se da una disrupción que nos parece puede estar condicionada por las exigencias funcionales concretas, esto es, la adaptación de la construcción original -estilo colonial- al centro clandestino de detención y tortura y/o a las exigencias sociales concretas: la aplicación de estructuras represivas bajo la Dictadura.
En cuanto al tema de la circulación al interior de los espacios queda registrada la alta segmentación existente, cuestión que permite evidenciar la maximización otorgada a los usos de estas estructuras (en particular, de las E3 y 4 adaptadas a las funciones de tortura, interrogación y detención).
Con el análisis de visibilidad se dibuja la relación directa existente con el sistema de circulación y movimiento del lugar, pues el dominio visual y el grado de exposición quedan supeditados a las estructuras relevantes relacionadas con los accesos y caminos principales. En este sentido encontramos que desde las E2 y 4 se podría haber estado controlando el funcionamiento del lugar. Por otra parte, el menor dominio visual y visibilidad era ostentado por la E3, cuya articulación interna (muro con estructuras o unidades interiores) habría limitado la exposición y habría otorgado mayor privacidad a estos espacios acorde a las funciones específicas que allí se realizaban. Sin embargo, esta situación es refrendada por lo que acontece al interior de esta estructura, pues aunque nuestra expectativa era encontrar mayor privacidad en las unidades relativas a las detenciones y torturas (celdas) encontramos que esto no se cumple, encontrando espacios de mediana y baja privacidad. De este modo, la privacidad en las celdas se podría relacionar con hacer evidentes las acciones allí contenidas (tortura) como otro mecanismo de sujeción.
Por su parte, el estudio de la proxémica puso en evidencia las limitaciones impuestas al espacio -celdas- y a las personas que pasaron por ellas. Subrayamos las condiciones de hacinamiento, ausencia de distancias personales y densidad de la ocupación para dar cuenta de que tales limitaciones espaciales-proxémicas son parte de las estrategias de represión y sumisión de los individuos, así como también las limitaciones impuestas a las experiencias sensoriales básicas: tacto, olfato, audición, textura, etc.
De esta manera, más allá del sólo hecho de evidenciar la existencia de una articulación directa entre la configuración arquitectónica/ espacial de Villa Grimaldi y las estrategias de represión y control políticas, se constata que esta relación tiene un accionar concreto en distintos planos, permitiéndonos postular que en la Dictadura del país un componente esencial a estas estrategias totalitarias la constituyó la manipulación de la cultura material. En efecto, el Cuartel Terranova se configuraba arquitectónica y espacialmente en función de los intereses dictatoriales, en tanto se adaptó la construcción original (Villa Grimaldi) al funcionamiento como centro clandestino de detención y tortura,¿cómo? Controlando los accesos y caminos del lugar, limitando las posibilidades de visibilidad de las estructuras, aumentando el cerramiento y aislamiento de las habitaciones, haciendo menos permanentes las construcciones, segmentando los espacios, maximizando el uso de estos, limitando el tamaño y aumentando la densidad de ocupación, anulando las distancias proxémicas, haciendo visibles los espacios relativos a la tortura, entre otros.
En una lectura simbólica del esquema general de circulación y acceso del lugar, creemos que a medida que nos adentramos por los caminos, se van intensificando los niveles de tortura y dolor, ya que vemos que el recorrido termina en La Torre, espacio del que muy pocos lograron sobrevivir: “…lo llevaron a la torre, el susurro informaba la desgracia. En la parrilla estoy vivo, en las celdas me quejo, alguien me consuela del dolor y la vergüenza…de la torre…de la torre no regreso…” (Corporación Parque por la Paz 1997).
Por último, todo este análisis nos permite reflexionar sobre las formas de represión y la propia experiencia de los detenidos. Una de las estructuras más relevantes del lugar es un pequeño muro en arco que permanece en la actualidad y en donde los detenidos encadenados eran sacados dos veces al día para ir al baño o comer (siempre vendados) y eran sentados allí. Esta estructura es testigo del intento por reconocerse entre detenidos, la entrega de mensajes entre éstos o simplemente el sentir la humanidad del otro. Otra estructura, la piscina, que en más de una ocasión sirvió para torturar, también fue aprovechada por los militares para su diversión. Los detenidos desde La Torre alcanzaban a oír sus divertimentos. Finalmente el ombú, que hoy se destaca en el paisaje, constituye un símbolo emblemático ya que ahí se colgaron y asesinaron a dos detenidos (Miguel Montecinos, com. pers. 2008). Relevantes son entonces estos elementos, pues forman parte del testimonio del lugar, permanecen expuestos en la actualidad, representando la memoria vivida de los que por el Cuartel Terranova pasaron.
CONCLUSIONES
La realización de este trabajo de investigación nos permitió desarrollar una línea metodológica que demuestra tener un alto potencial de aplicación para el estudio de la materialidad en sistemas políticos totalitarios.
Con cada análisis y estudio realizado, se manifestó la importancia que tiene la cultura material en el condicionamiento de las prácticas sociales como relaciones de poder y de la propia arqueología, que desarrolla toda una maquinaria de técnicas y métodos para entenderla. Cultura Material que como hemos visto, se va convirtiendo en un poderoso instrumento en el análisis de las historias subordinadas (Funari y Vieira de Oliveira 2006).
Al fin, sólo cabe reiterar la necesidad de introducir la temática de la “represión” en la arqueología no sólo de Chile, sino de todos los países latinoamericanos. Resulta una necesidad histórica, ética y política, tal como expresan los autores: “La importancia del estudio de la represión no puede ser desperdiciada, pues sólo el estudio de la opresión permite garantizar la libertad y entender cómo fue posible la barbarie. Esta es una condición necesaria, aunque no suficiente, para que la barbarie no vuelva a triunfar” (Funari y Vieira de Oliveira 2006:128).
Con estos lineamientos expresados nos queda decir que el trabajo expuesto intenta impulsar el desarrollo de un discurso arqueológico renovado, que insiste en la relevancia histórica, política, incluso emotiva de estudiar estos terribles acontecimientos, tanto por la voluntad de reconocimiento y recuerdo que se tiene hacia las personas asesinadas y denostadas, como también por la obligación personal de no olvidar, quedando un largo camino por recorrer aún.
NOTAS
1. El proyecto fue impulsado por La Corporación Parque por la Paz Villa Grimaldi, quienes desarrollan actividades de índole cultural. Han reconstruido sectores significativos con el testimonio de sobrevivientes (un ejemplo de ello, es La Torre, lugar emblemático del proceso), realizan visitas guiadas y proyectos relevantes como el Museo de la Memoria. Han logrado alzar a Villa Grimaldi como un lugar de connotación sin igual para la preservación de la memoria histórica y el respeto de los Derechos Humanos.
2. A pesar de que sobre los terrenos y escombros hoy se levanta el Parque por la Paz, hay estructuras que permanecen. A partir de la entrevista realizada a un testigo/sobreviviente hemos identificado una serie de lugares significativos, pues jugaron un rol relevante en la dinámica del centro de detención y tortura, por ejemplo, el árbol ombú, un muro en arco, el muro del lugar que albergaba las celdas, la piscina y escalinatas de la casona. Se realizaron análisis para estimar tamaños y proporciones dispuestos en el informe de práctica (Fuenzalida 2008).
3. Estas dimensiones fueron posibles de medir gracias a las reproducciones existentes actualmente en el parque realizadas en base a testimonios de sobrevivientes.
AGRADECIMIENTOS
Quiero agradecer a todos quienes cooperaron en la realización de este trabajo, que me permitió volver al pasado ensangrentado de Santiago y desde ahí revivir a los ausentes. En particular dar las gracias a Miguel Montecinos, quien me ilustró la crudeza de la tortura que encarnó.
BIBLIOGRAFÍA
1. Bate, L. 1974. Hipótesis sobre la sociedad clasista inicial. Boletín de Antropología Americana 9:47-86.
2. Bate, L. 1998. El Proceso de Investigación en Arqueología. Crítica, Barcelona.
3. Benavides, O. H. 2001. Returning to the source: Social Archaeology as Latin American Philosophy. Latin American Antiquity 12 (4):355-369.
4. Blanton, R. 1994. Houses and Households. A comparative study. Plenum Press, New York.
5. Ching, F. 2000. Arquitectura, Forma, Orden y Espacio. Gustavo Gili, México.
6. Corporación Parque por La Paz Villa Grimaldi 1997. Parque por la Paz Villa Grimaldi. Una deuda con nosotros mismos, Ministerio de Vivienda y Urbanismo, Departamento de Comunicaciones, Ministerio de Vivienda y Urbanismo, Gobierno de Chile.
7. Corporación Parque por La Paz Villa Grimaldi 2004. Corporación Parque por la Paz Villa Grimaldi, Testimonios. http//:www.villagrimaldicorp.cl/ (Acceso 17 abril 2008).
8. Criado, F. 1999. Del terreno al espacio: planteamiento y perspectivas para la Arqueología del Paisaje. Capa 6:1-90.
9. Di Vruno, A., de Haro, M. T., A. Diana, J. Doval, P. Giorno, Seldes, V. y L. Vásquez. 2008. Arqueología en un centro clandestino de detención. El caso de la Mansión Seré-Atila. En Cambio y Continuidad en la Arqueología Histórica, editado por M. T. Catarra, pp. 220-225. Escuela de Antropología, Facultad de Humanidades y Artes, Rosario.
10. Foucault, M. 1976. Historia de la Sexualidad 1, La Voluntad del Saber. Siglo XXI, México.
11. Fuenzalida, N. 2008. Informe de Práctica Profesional: Villa Grimaldi, Análisis de la Configuración del Espacio en relación a las Estrategias de Represión y Control de los Cuerpos de Detenidos y Torturados. Hacia una Arqueología de la Represión Política en Chile. Ms en archivo, Departamento de Antropología, Facultad de Ciencias Sociales, Universidad de Chile.
12. Funari, P. y A. Zarankin (editores) 2006. Arqueología de la Represión y la Resistencia en América Latina: 1960-1980. Encuentro Grupo Editor, Córdoba.
13. Funari, P. y N. Vieira De Oliveira 2006. La Arqueología del Conflicto en Brasil. En Arqueología de la Represión y la Resistencia en América Latina: 1960-1980, editado por P. Funari y A. Zarankin, pp. 121-128. Encuentro Grupo Editor, Córdoba.
14. Gándara, M. 1992. El análisis teórico: aplicación al estudio de la complejidad social. Boletín de Antropología Americana 25:93-104.
15. Hall, E. 1998 [1966]. La dimensión oculta. Siglo XXI, México.
16. Hillier, B y J. Hanson 1984. The social logic of space. Cambridge University Press, Cambridge.
17. Lumbreras, L. G. 1974. La Arqueología como Ciencia Social. Histar, Lima.
18. Mañana, P. M. Rotéa y X. Ayán 2002. Arqueotectura 1: Bases Teórico-Metodológicas para una Arqueología de la Arquitectura. Tapa 25:12-93.
19. Montané, J. 1980. Marxismo y arqueología. Ediciones de Cultura Popular, México.
20. Orellana, M. 1996. Historia de la Arqueología en Chile. Bravo y Allende, Santiago de Chile.
21. Sepúlveda, J. M. Fuentes, y A. San Francisco.2010. Espacios de represión, lugar de memoria. El Estadio Victor Jara como campo de detención y tortura masiva de la dictadura en Chile. Arqueología de la Dictadura. Actas del XVII Congreso Nacional de Arqueología Argentina, Tomo 3, pp. 1065-1070, Universidad Nacional de Cuyo, Mendoza.
22. Troncoso, A. D. Salazar y D. Jackson. 2008. Ciencia, Estado y Sociedad. Retrospectiva Crítica de la Arqueología Chilena. Revista de Arqueología Suramericana 4(2):122-145.
23. Uribe, M. y L. Adán. 2003. Arqueología, Poblaciones Originarias y Patrimonio Cultural en el Desierto de Atacama. Chungará 35(2):295-304.
24. Vargas, I. y Sanoja, M. 1995. La arqueología como ciencia social y su expresión en América Latina. Revista de Arqueología Americana 9:141-161.
25. Zarankin, A. 1999a. Casa Tomada; Sistema, Poder y Vivienda Familiar. En Sed Non Satiata. Teoría social en la Arqueología Latinoamericana Contemporánea, editado por F. Acuto y A. Zarankin, pp. 239-272. Ediciones del Tridente (Colección Científica), Buenos Aires.
26. Zarankin, A 1999b. Arqueología de la Arquitectura: Another Brick in the Wall. Revista Do Museu de Arqueologia e Etnologia 3:119-128.
27. Zarankin, A. y C. Niro. 2006. La materialización del sadismo. Arqueología de la Arquitectura de los Centros Clandestinos de Detención de la Dictadura Militar Argentina (1976-1983). En Arqueología de la Represión y la Resistencia en América Latina: 1960-1980, editado por P. Funari y A. Zarankin, pp. 159-182. Encuentro Grupo Editor, Córdoba.